Description
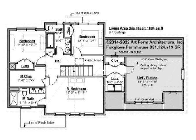
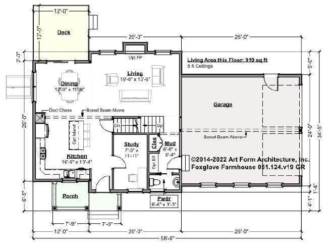
A signature open-concept design by Art Form Architecture blends timeless Craftsman style with modern comfort. Nestled on 2.4 acres, this stunning Foxglove Farmhouse home features an attached two-car garage. Inside, you'll find gleaming hardwood floors throughout. The home offers 3 spacious bedrooms and three baths, including a luxurious primary suite with a tile shower, double vanity, and walk-in closet, and a 2nd floor bonus room/4th bedroom/home office (unfinished, but can be) - you decide. The first-floor study/den provides the perfect space for a home office or flexible living, while the second-floor laundry room adds everyday convenience. Enjoy high-end finishes throughout, including granite countertops in the kitchen and baths, tiled bathrooms and laundry, and a cozy gas fireplace. Central air conditioning ensures year-round comfort. Step outside to relax on your private rear deck or greet guests from the inviting front Farmers Porch"both built to last with low-maintenance materials. Additional features include Energy Star-rated windows, a paved driveway, and professional landscaping. Located with easy access to the Rockingham Rail Trail, this home is a commuters dream. Convenient to the Seacoast, the Lakes Region, the White Mountains, and the Massachusetts border, as well as Portsmouth and Manchester. Dont miss your opportunity to settle into the beautiful town of Fremont!
-
3BEDS
-
2.4ACRES
-
2BATHS
-
11/2 BATHS
-
1,923SQFT
-
$434$/SQFT
School Information
Description
A signature open-concept design by Art Form Architecture blends timeless Craftsman style with modern comfort. Nestled on 2.4 acres, this stunning Foxglove Farmhouse home features an attached two-car garage. Inside, you'll find gleaming hardwood floors throughout. The home offers 3 spacious bedrooms and three baths, including a luxurious primary suite with a tile shower, double vanity, and walk-in closet, and a 2nd floor bonus room/4th bedroom/home office (unfinished, but can be) - you decide. The first-floor study/den provides the perfect space for a home office or flexible living, while the second-floor laundry room adds everyday convenience. Enjoy high-end finishes throughout, including granite countertops in the kitchen and baths, tiled bathrooms and laundry, and a cozy gas fireplace. Central air conditioning ensures year-round comfort. Step outside to relax on your private rear deck or greet guests from the inviting front Farmers Porch"both built to last with low-maintenance materials. Additional features include Energy Star-rated windows, a paved driveway, and professional landscaping. Located with easy access to the Rockingham Rail Trail, this home is a commuters dream. Convenient to the Seacoast, the Lakes Region, the White Mountains, and the Massachusetts border, as well as Portsmouth and Manchester. Dont miss your opportunity to settle into the beautiful town of Fremont!
© Copyright 2026 PrimeMLS. All rights reserved. This information is deemed reliable, but not guaranteed. The data relating to real estate displayed on this Site comes in part from the IDX Program of PrimeMLS. The information being provided is for consumers’ personal, non-commercial use and may not be used for any purpose other than to identify prospective properties consumers may be interested in purchasing. Data last updated 2026-03-06T10:05:50.243.
Courtesy of Craig Formalarie of The Gove Group Real Estate, LLC: .